UNIQUEMENT A L'AGENCE EMERAUDE IMMOBILIER
PLURIEN
A ENVIRON 1000M DE SABLES D'OR LES PINS
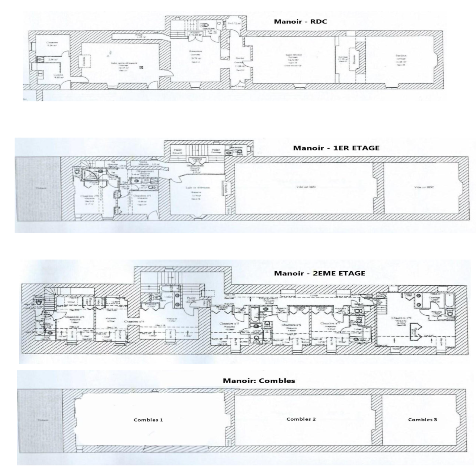
Manoir du 16ème siècle anciennement à usage d'hôtel offrant 8 chambres (chaque chambre dispose de sa salle d'eau et de son WC privatif)
Terrain constructible et piscinable d'environ 1 798m2
COUP DE COEUR ASSURE!!!
Les informations sur les risques auxquels ce bien est exposé sont disponibles sur le site Georisques : www.georisques.gouv.fr
Les informations sur les risques auxquels ce bien est exposé sont disponibles sur le site Géorisques
