UNIQUEMENT A L'AGENCE EMERAUDE IMMOBILIER
SAINT CAST LE GUILDO
AU CALME A PROXIMITE DE LA PLAGE DE LA FOSSE ET A PROXIMITE D'UN BOIS
Au sein de ce cadre bucolique
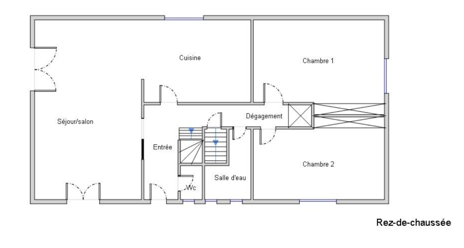
cette maison traditionnelle indépendante offre au rez-de-chaussée: entrée, salon séjour avec cheminée, cuisine aménagée et ésuipée, 2 chambres, salle de'au, wc
A l'étage: palier desservant 2 chambres, wc, grenier (permettant de créer une salle d'eau)
Sous-sol complet
Le tout sur un terrain arboré et paysagé d'environ 1320m2
Assainissement indépendant
Les informations sur les risques auxquels ce bien est exposé sont disponibles sur le site Georisques : www.georisques.gouv.fr
