L'AGENCE EMERAUDE IMMOBILIER vous propose à NOTRE DAME DU GUILDO
maison d'habitation construite en pierres couverte en ardoises naturelles comprenant :
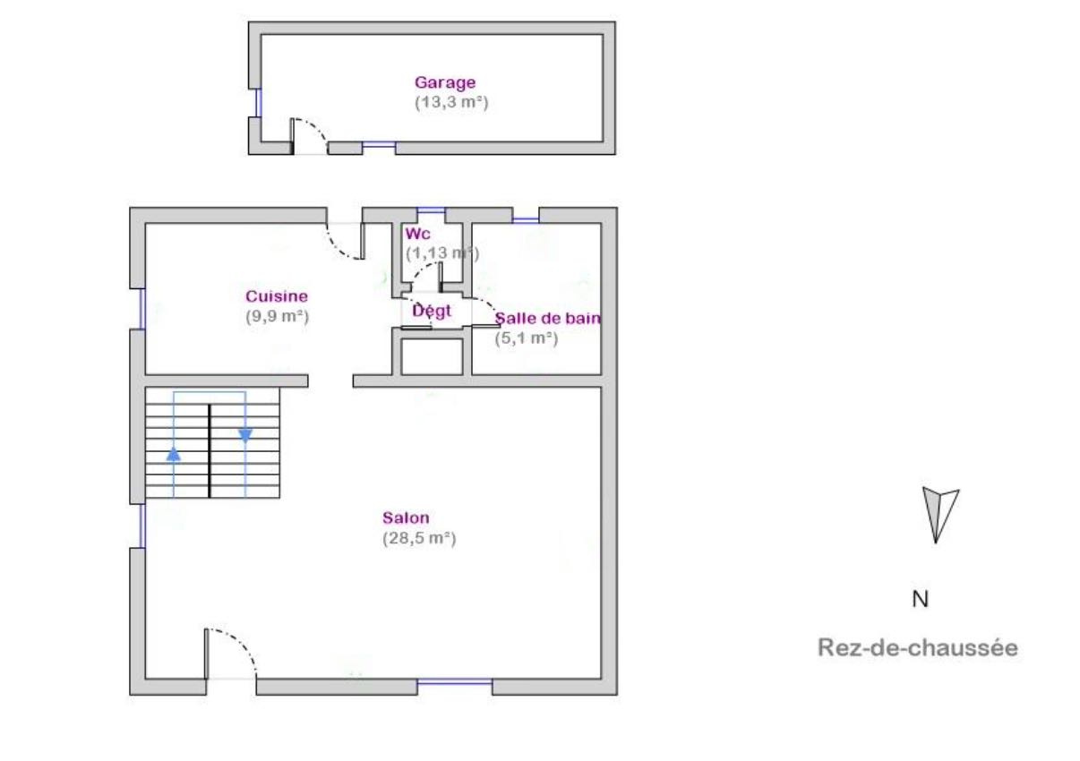
- Au Rez-de-Chaussée : salle de séjour, cuisine, salle de bains, W.C.
- A l'étage : 2 chambres, dressing
Cellier,
Jardin.
