Maison du pays en pierre indépendante
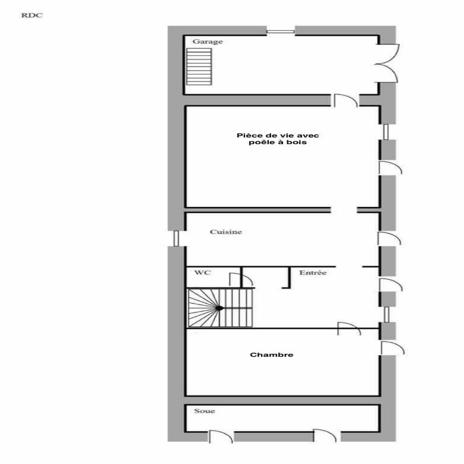
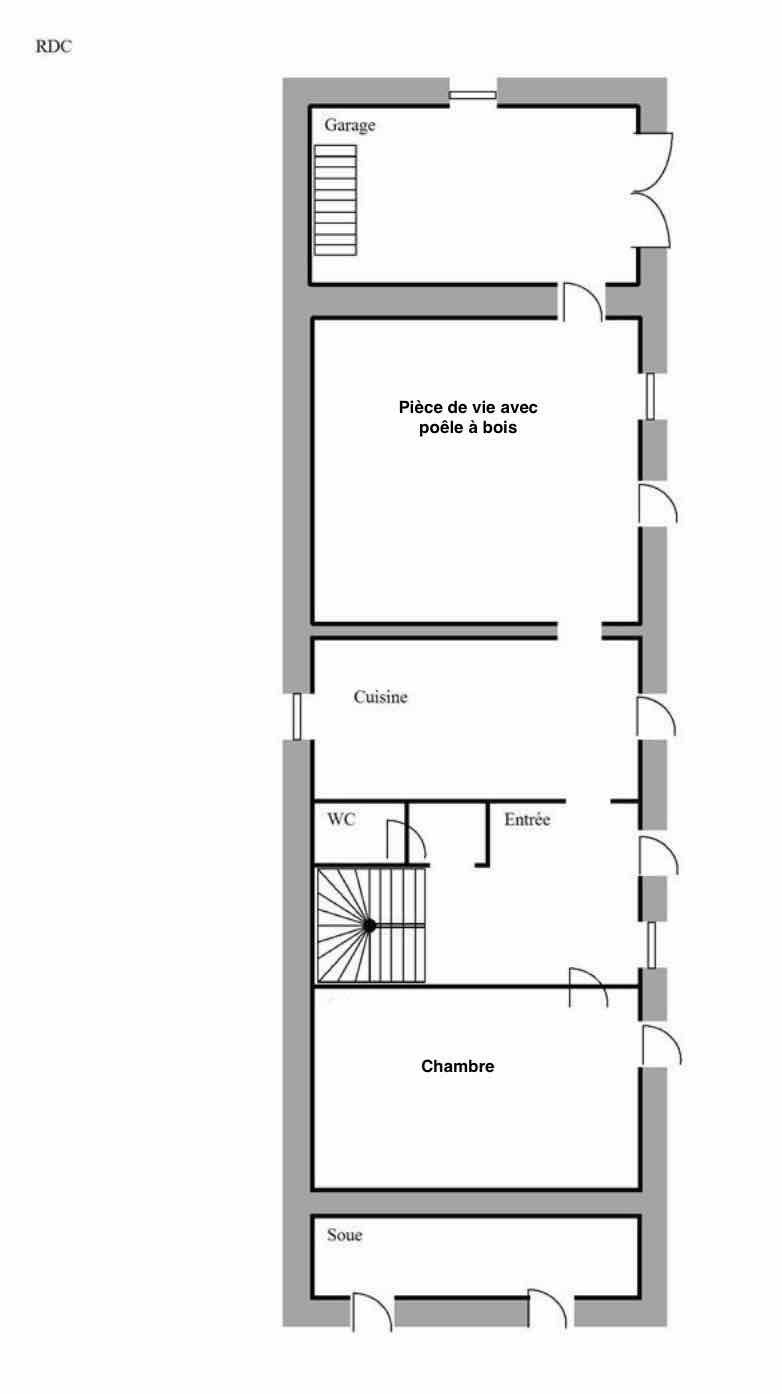
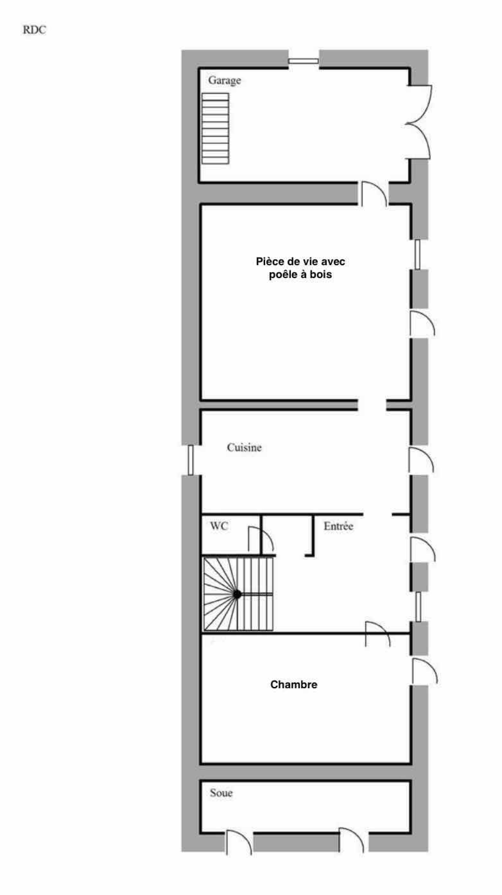
offrant au rez-de-chaussée: entrée, pièce de vie avec poêle à bois, cuisine indépendante, chambre avec cheminée, wc indépendant
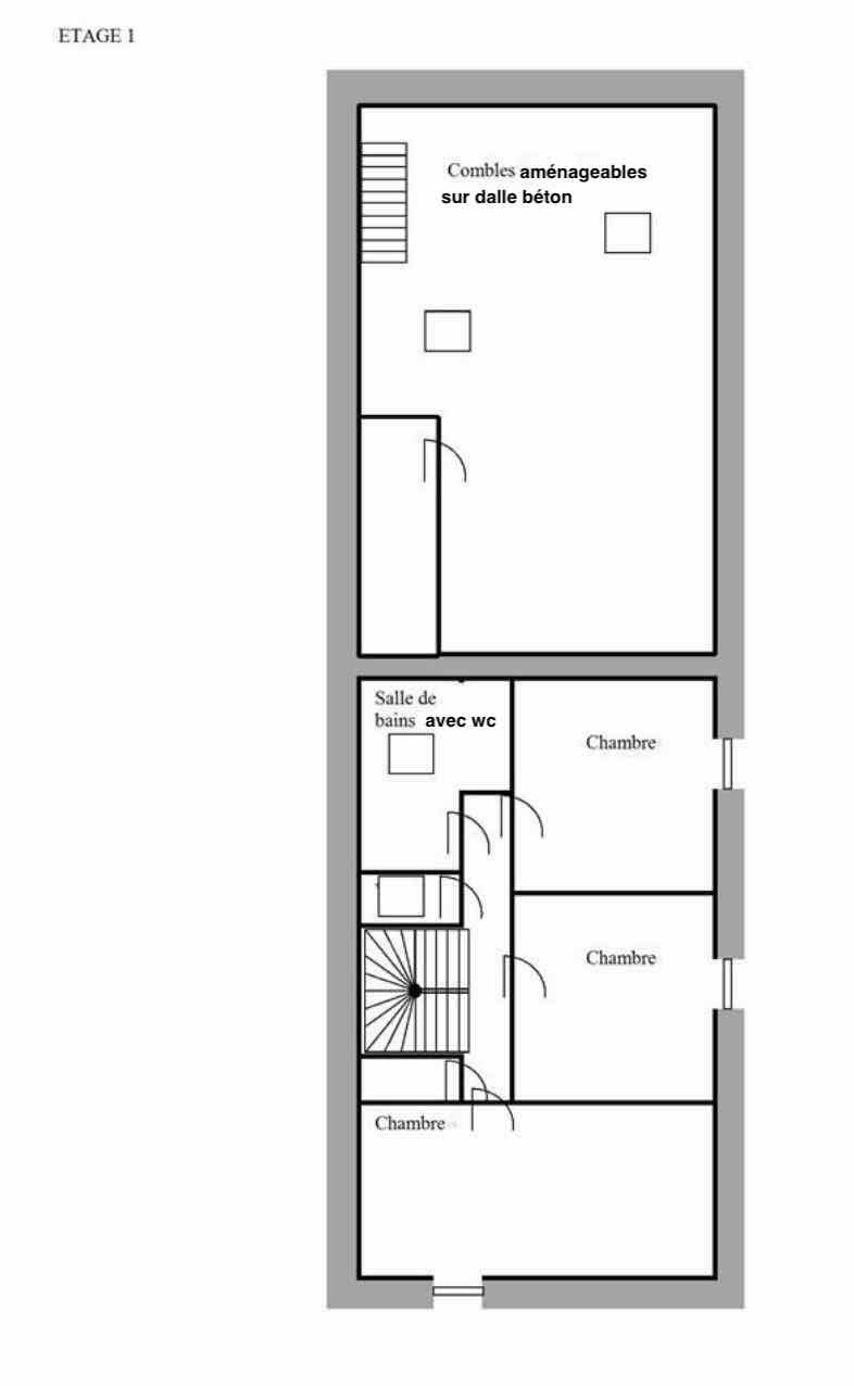
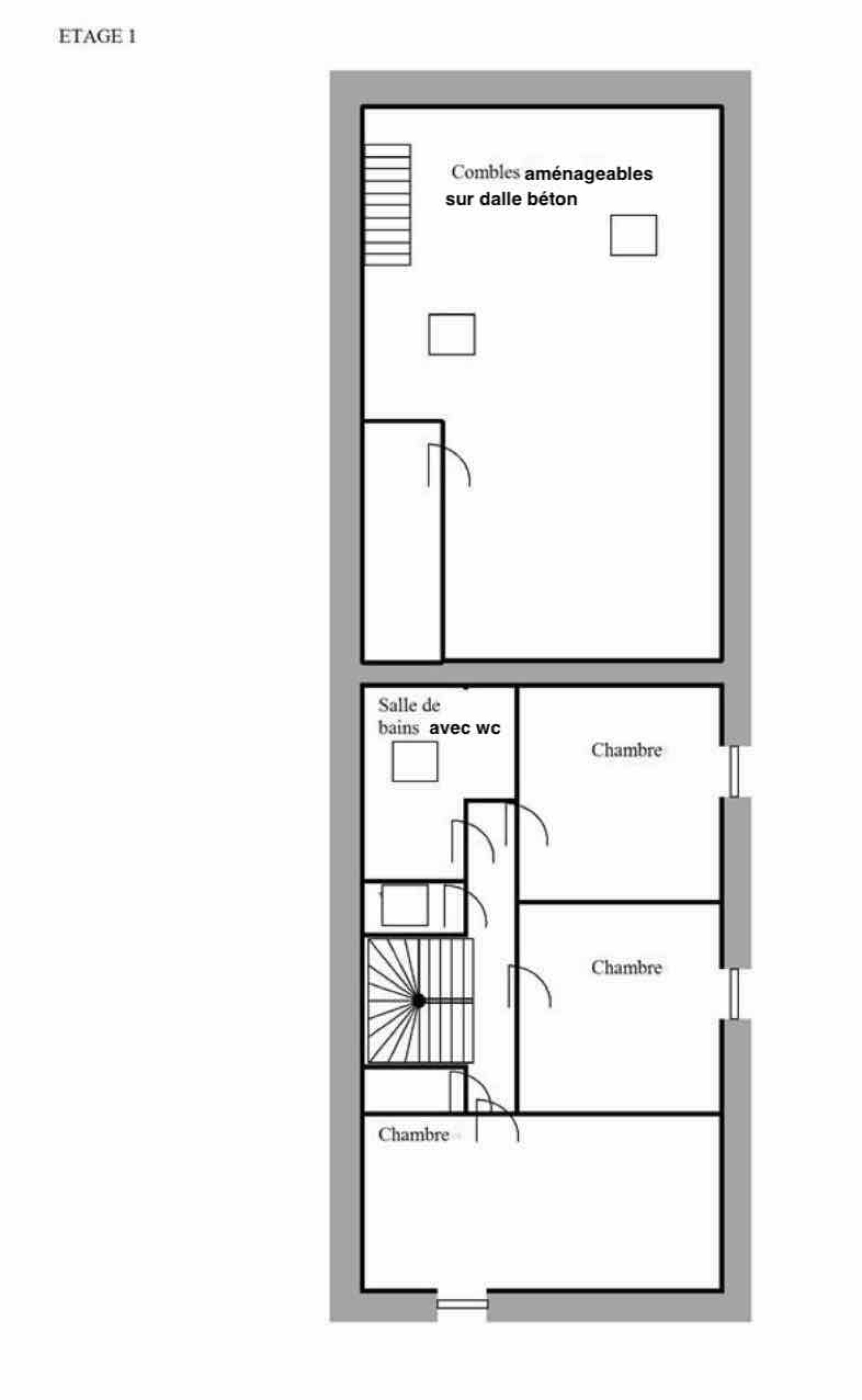
A l'étage (sur dalle béton): palier, 3 chambres, salle de bains (douche + baignoire), wc indépendant, grenier aménageable
Garage attenant
Un second garage indépendant
Le tout autour d'environ 1910m2
Les informations sur les risques auxquels ce bien est exposé sont disponibles sur le site Géorisques : www.georisques.gouv.fr
